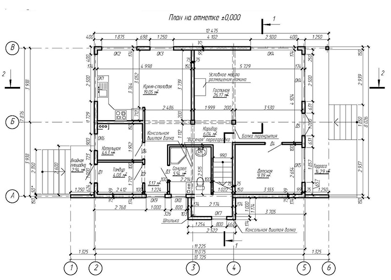
Фундамент — деревянный ростверк на ж/б столбах
Несущие стены — SIP панель (174мм)
Покрытие — металочерепица
Наружная отделка — штукатурка, облицовочная плитка, природный камень
Каркасное строительство
по всей России
г. Нижний Новгород
+7(951) 917-39-35
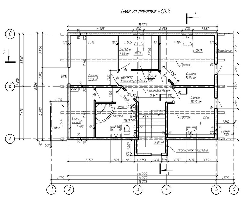
Фундамент — деревянный ростверк на ж/б столбах
Несущие стены — SIP панель (174мм)
Покрытие — металочерепица
Наружная отделка — штукатурка, облицовочная плитка, природный камень





