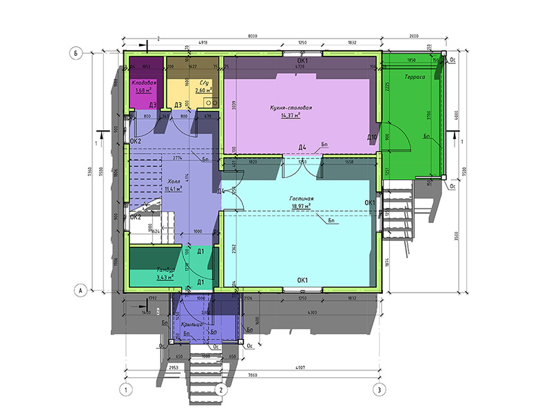
Фундамент — швеллер, обвязочная доска на винтовых сваях
Несущие стены — SIP панель (174мм)
Покрытие — металочерепица
Наружная отделка — фиброплита под природный камень
Каркасное строительство
по всей России
г. Нижний Новгород
+7(951) 917-39-35
Фундамент — швеллер, обвязочная доска на винтовых сваях
Несущие стены — SIP панель (174мм)
Покрытие — металочерепица
Наружная отделка — фиброплита под природный камень





