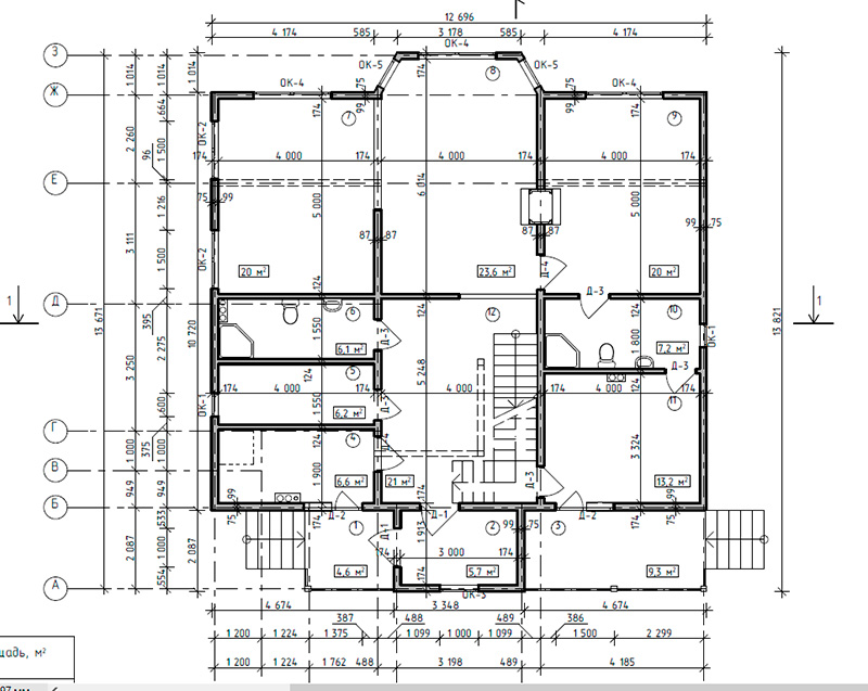
Фундамент — мелкозаглубленный ленточный на буронабивных сваях
Несущие стены — SIP панель (174мм)
Покрытие — битумная черепица
Наружная отделка — фиброцементные панели.
Каркасное строительство
по всей России
г. Нижний Новгород
+7(951) 917-39-35
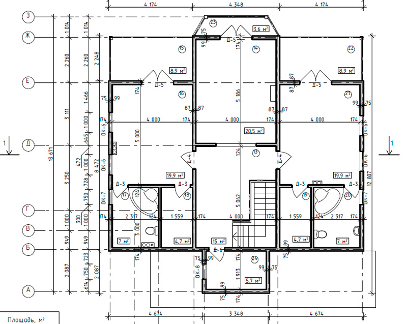
Фундамент — мелкозаглубленный ленточный на буронабивных сваях
Несущие стены — SIP панель (174мм)
Покрытие — битумная черепица
Наружная отделка — фиброцементные панели.





